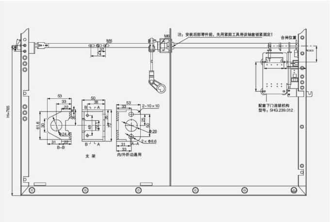
Данная схема сборки является специализированным руководством по монтажу для решения передачи движения с концентрическим коленчатым рычагом в узких корпусах шириной 550mm. Она определяет относительные положения установки, размерные допуски и порядок сборки корпуса устройства блокировки, концентрического коленчатого рычага, ведущего вала передачи движения и триггера ограничителя положения задней двери. Применяет конструкцию передачи движения с концентрической осью, обеспечивая безпотерную передачу эксплуатационного усилия вдоль одной и той же оси. Одновременно схема указывает ключевые базовые поверхности монтажа, зазоры в сопряжениях и требования к крутящему моменту при затяжке. Подходит для серийной сборки новых шкафов шириной 550mm, стандартизации модернизации механизмов передачи движения старых корпусов, и может быть напрямую использована как техническое основание для производства и монтажных работ на месте.