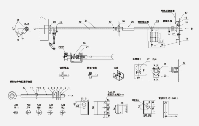
Данная схема сборки является специализированным руководством по монтажу для решения блокировки с тяжеловесной передачей движения через коленчатый рычаг в крупногабаритных корпусах. В отличие от универсального решения с коленчатым рычагом для малогабаритных корпусов, она использует конструкцию с высокоторсионным коленчатым рычагом, определяя относительные положения установки, виды сопряжений и технологический процесс сборки корпуса устройства блокировки, тяжеловесного коленчатого рычага, усиленного ведущего вала передачи движения и триггера ограничителя положения двери. Схема указывает параметры компенсации размеров монтажа для корпусов различной крупной ширины, требования к износостойким зазорам в ключевых шарнирных узлах и нормы крутящего момента при затяжке высокопрочных болтов, обеспечивая эффективную передачу больших эксплуатационных усилий с изменением направления через коленчатый рычаг. Подходит для серийной сборки новых крупногабаритных корпусов, модернизации систем передачи движения с коленчатым рычагом в старых крупных корпусах, стандартизации апгрейда корпусов для тяжеловесных распределительных сценариев, и может быть напрямую использована как основа для технического инструктажа и приемки монтажных работ.